• Track Record
  • Clients
  • Watling i
Freshford Mill
Freshford Mill, Freshford, Nr Bath, Somerset, BA2 7PL
Photo 2 Photo 3 Photo 4 Photo 5
Offers Over
POA
Property Type
Development, Land, Residential
Availability
Sold
Reference

Key Features

Description

Description

A unique residential development within the picturesque Somerset countryside.
Desirable location situated within the 'Cotswold Area of Outstanding Natural Beauty'.
Freshford is located approximately 5 miles south east of Bath and 17 miles south west of Bristol.
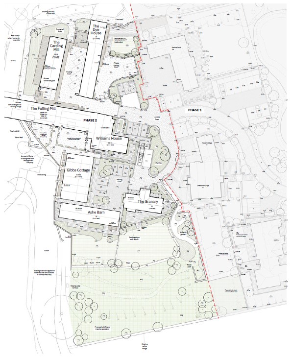
Comprises two phases.
Phase 1 is complete and consists of 10 units which have all been sold off.
Phase 2 is part built with implemented planning for 16units consisting of a mix of new build and conversion of the existing mill buildings.
Estimated GDV in excess of GBP13.1m in respect of Phase 2.
Offers are invited for the freehold interest.

Make an enquiry

Chris Davies
Chris Davies
WATLING REAL ESTATE LIMITED
Tel: 07949 375 722

Make an enquiry

Jackie Birchall
+44 (0)7887 987 409
jackie.birchall@watling.com

Other Properties

News and properties in your inbox

Subscribe to our mailing list and receive exclusive updates, including property news, latest properties to be launched to the market, latest news and more. We respect our contact choices and don’t like to send out spam, you are free to choose which mailing lists you would like to be subscribed to catered on your interest. Please choose which list is best suited for your preference below.

Subscribe Form Popup